+91-7305456660 admin@frontierhomes.in

" Aliph" is a luxurious 2 BHK residential apartment promoted by Frontier Homes at Mazeeth Nagar, Kelambakkam, Chennai, where 25 flats have been constructed in 5 Blocks, five flats in each block with a built up area ranging from 1110 sq.ft to 1242 sq.ft along with an undivided share of land (UDS) of 440 sq.ft to 492 sq.ft. It's DTCP Approved Project. The Flats are ready to move in condition. These Luxurious 2 BHK Flats would very well fit into your budget as they are available in an affordable price between 48.5 Lakhs and 54 Lakhs including common area, Car Parking slot on the basement, registration charges of UDS and GST component.

  • Project category : Apartment
  • Client Name : Frontier Homes
  • Start Date : 15 december, 2021
  • Street : Mazeeth Nagar,
  • Address : Kelambakkam, Chennai.
  • Share :

TEAK WOOD door frame and shutter, make of aesthetically designed with melamine polishing and designer. UPVC window frames of ALPINE PROFILE.

EXTERIOR:Sand texture mat finish with ACE PAINT
INTERIOR:Smooth finish with TRACTOR EMULSION paint. RJP/ BRILA imported wall putty with emulsion paints.

Wall Mounted white colour closet with Consealed Flush Tank, white Washbasin, Taps, Shower and other fittings are of American Standared.

Concealed copper wiring with conduits for lights from the make of FINOLEX / ORBIT. 3 Phase supply for each unit an individual meter board. All electrical plug points and switches are from the make of ROMA.

In hall, bed rooms & kitchen, regular plain colour ceramic vitrified (2' x 2') digital tiles from the make of ANUJ / KAG / SOMANY.

ISI brand threaded fittings and PVC 6 KGS for sanitary lines.

All the Hardware items are from the make of GARG/MAYUR & the Lock items are from the make of DICHKARO / ARCHIS



  • Readily available for occupancy.
  • Preferable east and north facing options & vasthu compliant.
  • Secured and peaceful location
  • Worth investment with good appreciation in the near future
  • Decent rental income is assured.
  • Water logging free area
  • Spacious car parking slots on the basement floor
  • Kelambakkam market and Bus Depot are very closeby.
  • Reputed educational institutions and hospitals are located in a radius          of 3 Kms.
  • Quality of construction - Building Constructed with Red Chamber                 Bricks and River Sand
  • Within budgetary price

Aliph Apartment

Interior

Aliph Apartment

Interior

Aliph Apartment

Interior

Interior

Aliph Apartment

Aliph Apartment

Interior

Aliph Apartment

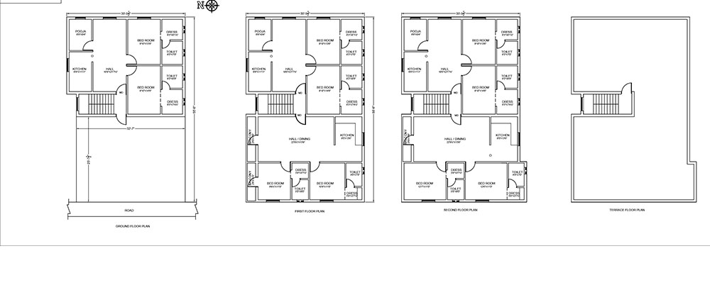
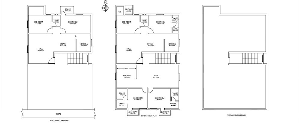
Floor plan

Aliph Apartment

Floor plan